Υπηρεσίες Τρισδιάστατης Σχεδίασης και Συντονισμού Η/Μ εγκαταστάσεων, με τη χρήση λογισμικού BIM.

Σχετικά με την επιχείρηση

Το draft3rStudio αποτελείται από έμπειρους μηχανολόγους, BIM managers, coordinators και drafters που μπορούν να φέρουν εις πέρας ακόμα και το πιο απαιτητικό έργο.
Αντικείμενο μας η μεταφορά των Η/Μ μελετών σας σε τρισδιάστατο πληροφοριακό μοντέλο, με τη χρήση λογισμικού BIM (Revit).

Αν δεν υπάρχει το κτιριακό μοντέλο σε BIM (Αρχιτεκτονικό), έχουμε τη δυνατότητα να το μοντελοποιήσουμε εμείς.

Το Μοντέλο Δομικών Πληροφοριών (ΒΙΜ) αποτελεί τον πλέον σύγχρονο τρόπο για τον τεχνικό σχεδιασμό και τη διαχείριση της κατασκευής και της λειτουργίας τεχνικών έργων.

Η μελέτη, η κατασκευή και η διαχείριση του έργου περνούν από το 2διάστατο σχέδιο (2D) στο 3διάστατο (3D) πληροφοριακό μοντέλο του έργου με τη χρήση έξυπνων αντικειμένων.

Αυτό έχει ως αποτέλεσμα την έγκαιρη πρόγνωση και αντιμετώπιση των σχεδιαστικών αναντιστοιχιών και την χρονική και οικονομική βελτιστοποίηση του έργου.

Γιατί να επιλέξετε εμάς :

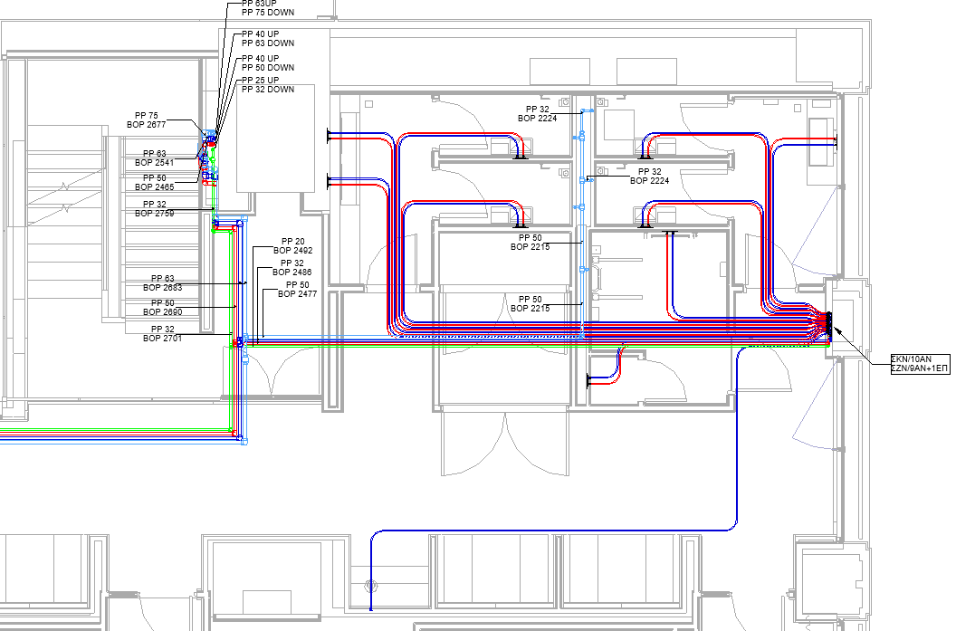
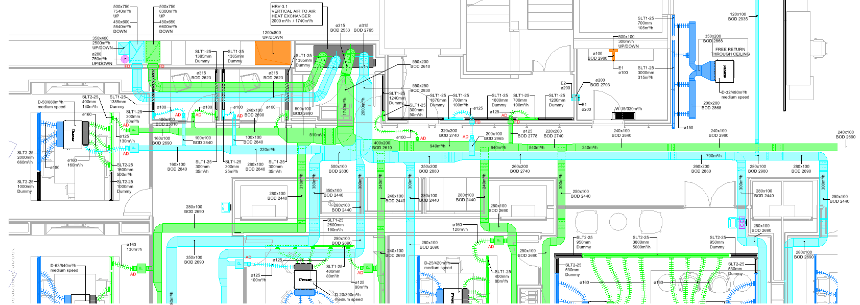
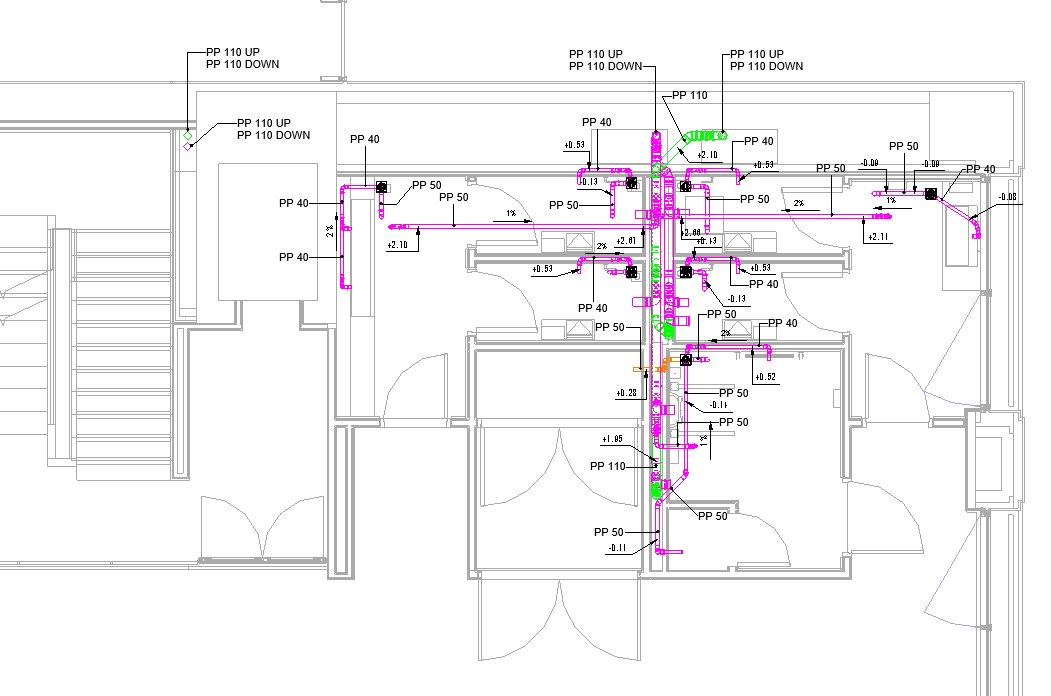
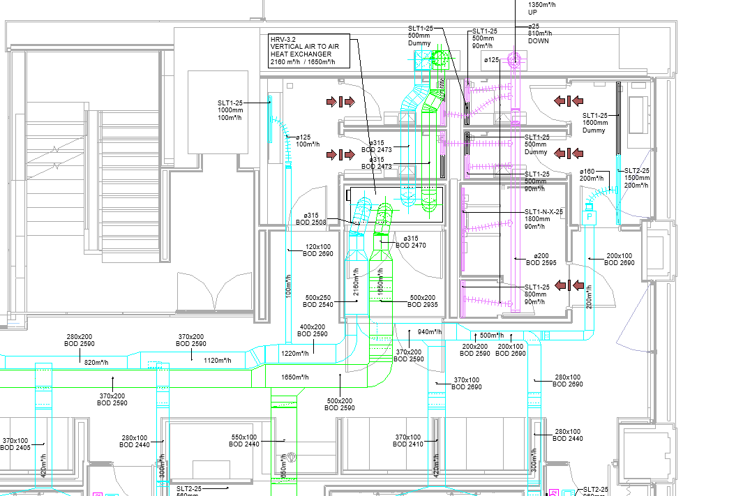
Εμείς, στο draft3rStudio, χρησιμοποιούμε families (τρισδιάστατο πληροφοριακό μοντέλο), σε LOD 300-350, είτε κατεβασμένες από το site του κατασκευαστή, είτε φτιαγμένες εξ αρχής από εμάς, με αποτέλεσμα όλα τα μοντέλα μας να είναι 1:1 σχεδιασμένα και τοποθετημένα στο χώρο με ακρίβεια κατασκευής. Το ίδιο ισχύει και για όλες τις σωληνώσεις / σχάρες / αεραγωγούς κλπ δίκτυα. Οι σωληνώσεις μας είναι σχεδιασμένες σε LOD 300-350, δηλαδή με το ακριβές υλικό/εξαρτήματα που θα χρησιμοποιηθούν στην κατασκευή, και όχι με "generic types". Όλα μας τα δίκτυα (και μηχανήματα, εξαρτήματα, εξοπλισμός) είναι σχεδιασμένα και συντονισμένα στο 100% και έτοιμα προς κατασκευή. Έχουμε μεγάλη τεχνογνωσία και εμπειρία στον χώρο των Η/Μ μελετών / κατασκευών, σε επίπεδο μελέτης, σχεδίασης, συντονισμού, επίβλεψης και as built αποτύπωσης και σχεδίασης. Οι συνεργάτες μας είναι όλοι έμπειροι (με πάνω από 20 χρόνια εμπειρία) μηχανολόγοι, ηλεκτρολόγοι και σχεδιαστές.

Έργα

Ανακαίνιση κεντρικών γραφείων Alpha Bank. 15 επίπεδα. 17.000 τμ

Νέα μονάδα παραγωγής & Κτίριο γραφείων Pharmathen. 4 κτίρια. 15.000 τμ

Εγκαταστάσεις  Ύδρευσης/Αποχέτευσης Κτιριακού συγκροτήματος Κύριας Κατοικίας & βοηθητικών κτιρίων Skorpios Island. 12.000 τμ + Περιβάλλων χώρος

Ηλεκτρικοί Υποσταθμοί & Αντλιοστάσια Ύδρευσης/Πυρόσβεσης Ξενοδοχειακής Μονάδας Skorpios Island. 7 κτίρια. 1.000 τμ

Εγκαταστάσεις εμφιάλωσης υγραερίου στη Μύκονο, για την "Υγραέρια Κυκλάδων ΑΒΕΕ"

Κεντρικό αντλιοστάσιο/μηχανοστάσιο πολυτελούς κατοικίας στην Αντίπαρο

Πολυκατοικία πολυτελών διαμερισμάτων στο Ψυχικό